bouw je eigen
droomhuis met
Bouwbedrijf Hof

[rank_math_breadcrumb]

Woningen voor senioren

Levensloop bestendig wonen?
Bouwbedrijf Hof laat uw droom uitkomen!

Kent u die imposante bungalows van de architect Frank Lloyd Wright? Deze bouwwerken zijn een lust voor het ogen. Ze verweven de natuur buitenshuis feilloos met het gezinsleven binnenshuis. De levensloop bestendige woningen van Bouwbedrijf Hof zijn gebaseerd op de Amerikaanse prairie-stijl, die vroeger de huizen op het platteland sierden.

Kenmerken American Dream-huizen

De levensloop bestendige huizen in Amerikaanse stijl worden gekenmerkt door hun horizontale opbouw met soms paddestoelachtige daken door een riante dakoverstek. In de ontwerpen van Wright was meestal veel ruimte voor geometrische figuraties en versmelting van de omgeving buiten met het leven binnen. De huizen hebben een ruime opzet en het dagelijks leven is veelal gesitueerd op de begane grond. Veel huizen in deze Amerikaanse bouwstijl hebben een plat dak of een dak dat direct op de eerste verdieping begint. Hierdoor zijn deze woningen ook uitermate geschikt als levensloopbestendige woningen voor senioren. Kies voor een zee van ruimte en geef uw eigen draai aan deze Amerikaanse evergreen om er uw droomhuis van te maken. 

Neem voor meer informatie over een Amerikaans huis bouwen contact met ons op.

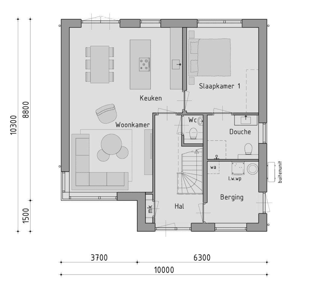
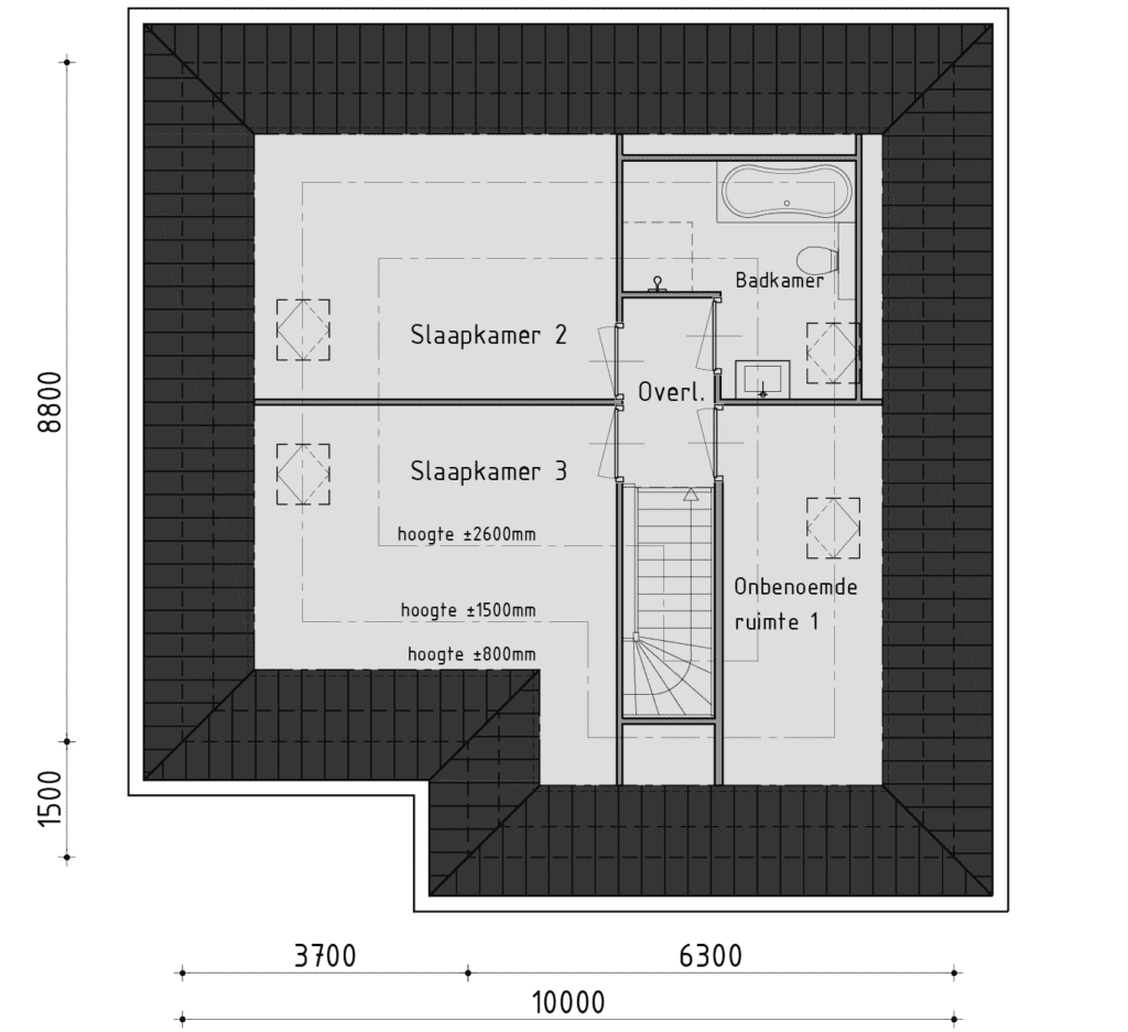
de plattegronden

beneden verdieping
boven verdieping