bouw je eigen
droomhuis bij
Bouwbedrijf Hof

6 sfeervolle eengezinswoningen in Rozenbuurt, Zwaag.

6 sfeervolle eengezinswoningen in Rozenbuurt, Zwaag.

De eengezinswoningen zijn prachtig gelegen in deze nieuwe wijk dichtbij het centrum van de historische stad Hoorn. De woningen zijn voorzien van een lucht- warmtepomp in combinatie met alle verdiepingen vloerverwarming en inclusief pv- panelen. Elke woning is uitgevoerd met een vrijstaande houten berging die achter in de tuin is geplaatst.

Informatie

Zwaag

Totaal 6 woning

en

In opdracht van: Stark vastgoed B.V.

Verkoop: Eigen beheer

Verkoopinformatie

jaspersvandiepen

Jaspers - van Diepen

T: (0229) 57 3600

Brochures

Zwaag Rozenbuurt rijwoningen 75-80 Hof input_09

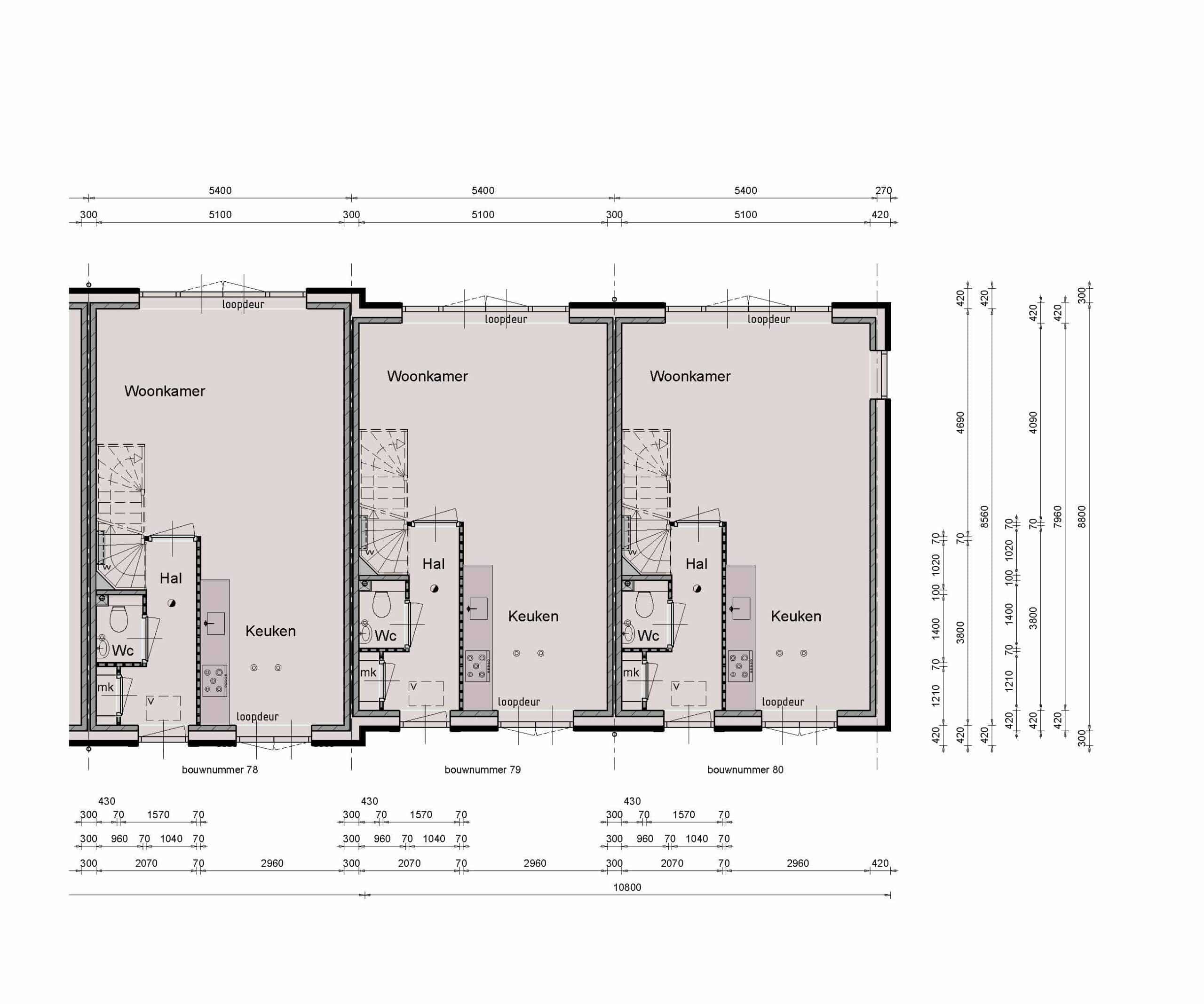
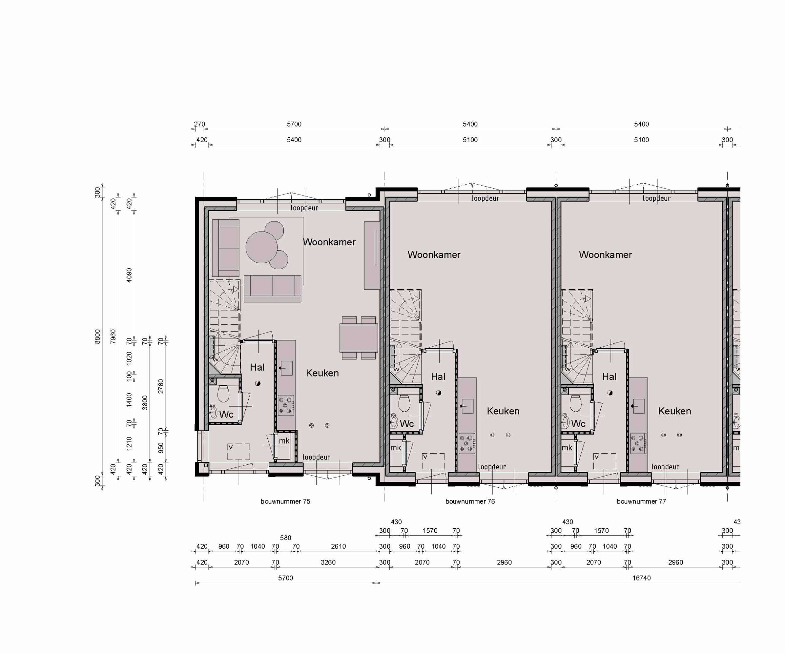
Begane grond 1

Zwaag Rozenbuurt rijwoningen 75-80 Hof input_10

Begane grond 2

Zwaag Rozenbuurt rijwoningen 75-80 Hof input_12

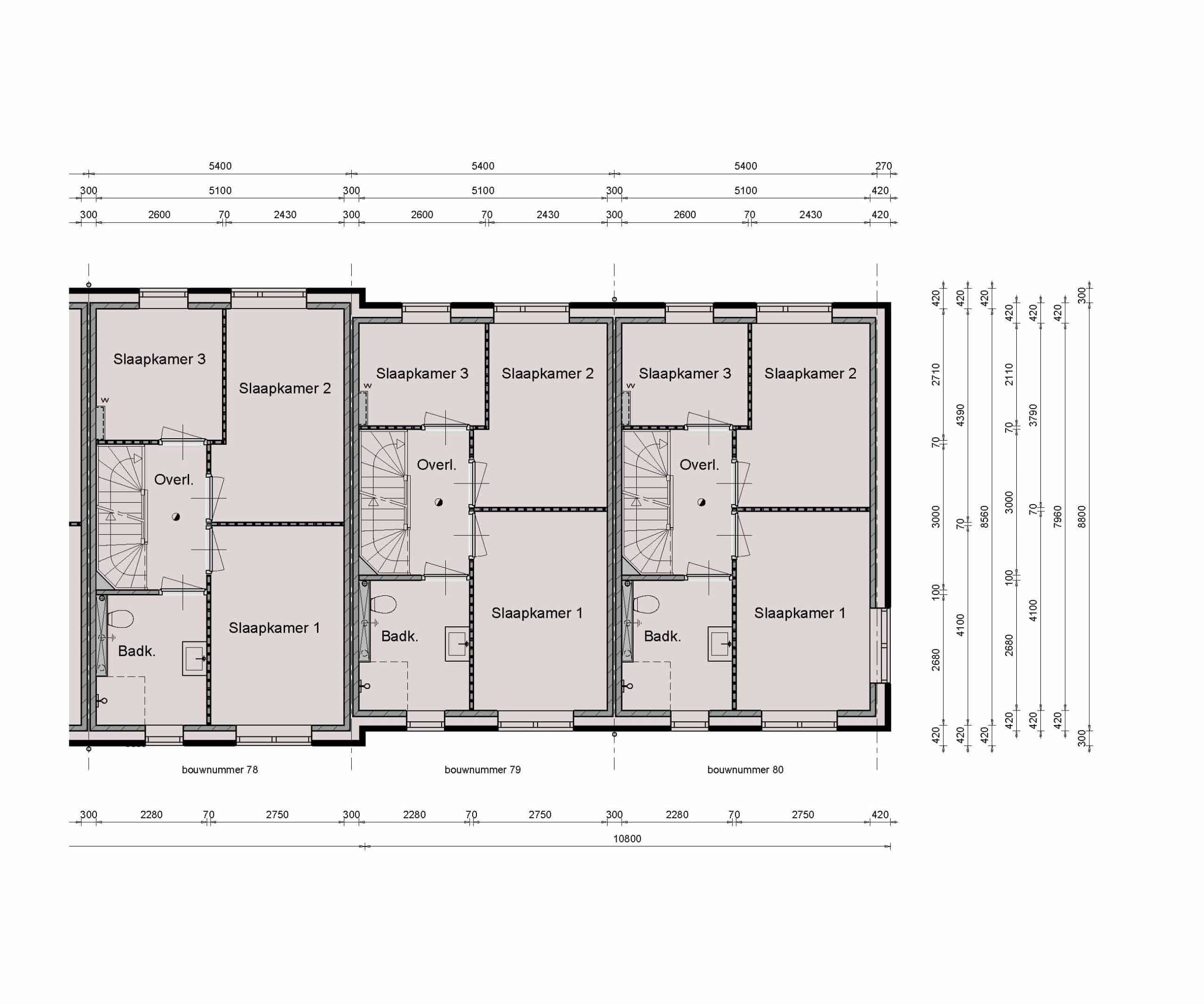
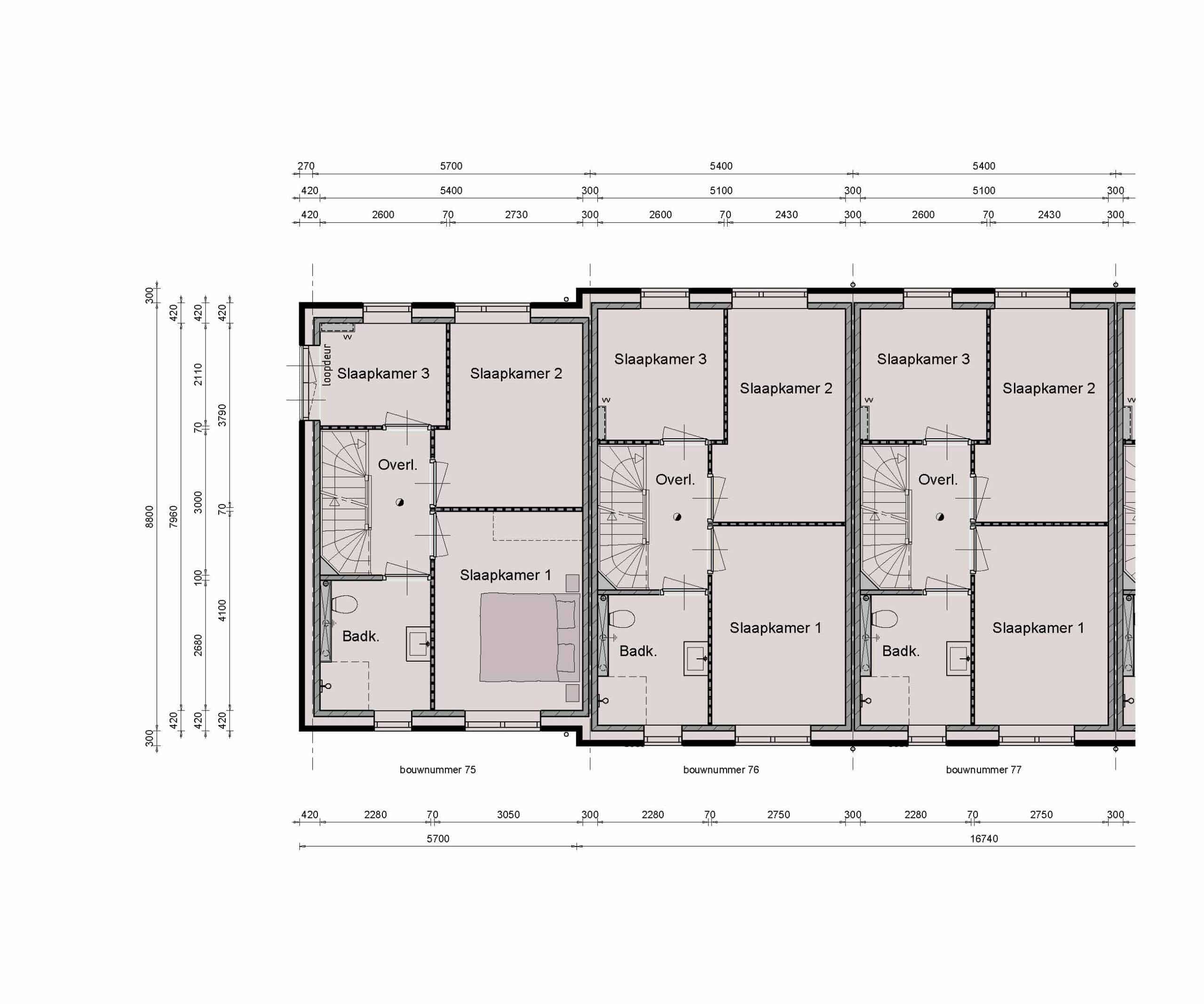
Eerste verdieping 1

Zwaag Rozenbuurt rijwoningen 75-80 Hof input_11

Eerste verdieping 2

Impressies