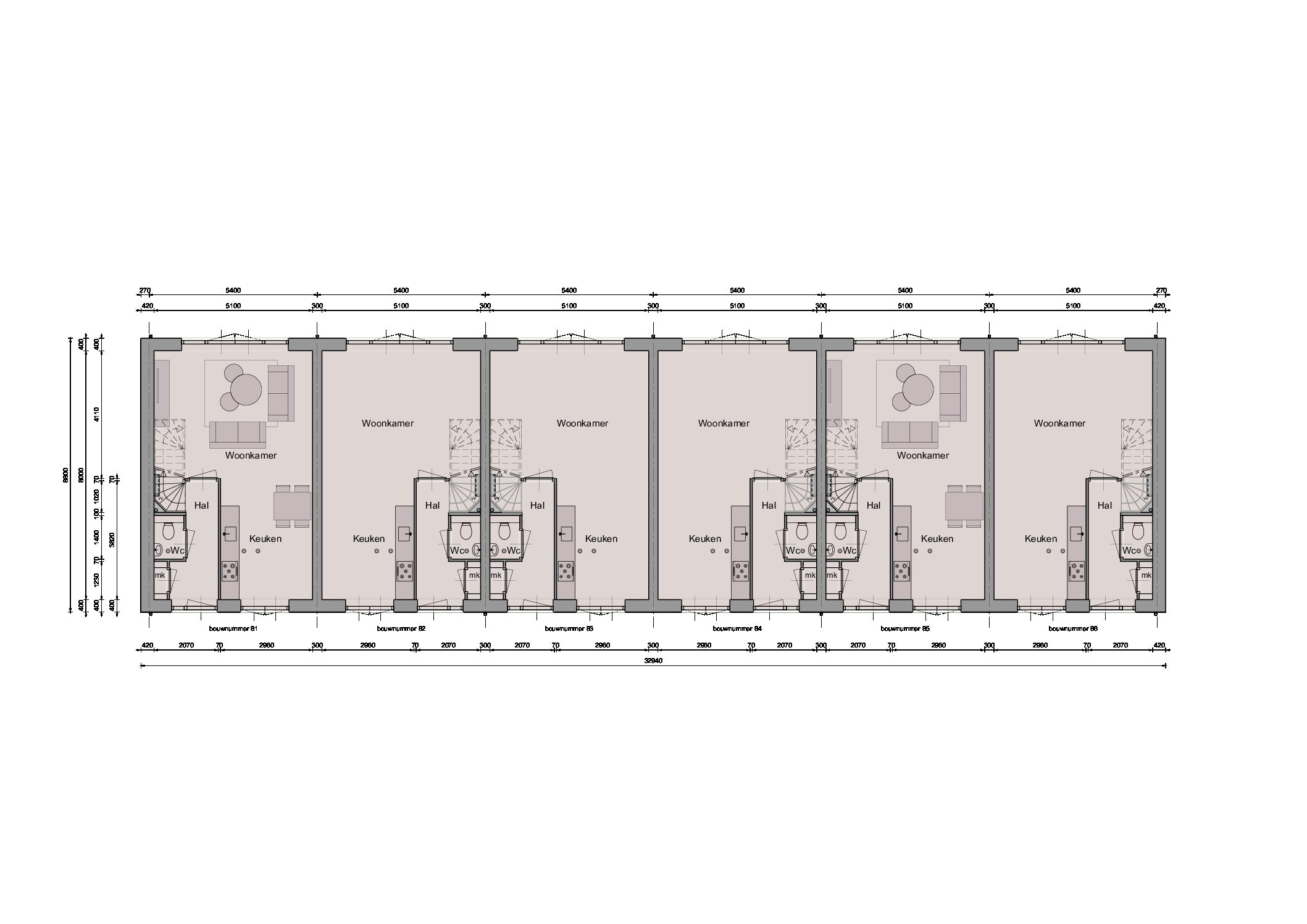
De eengezinswoningen zijn prachtig gelegen in deze nieuwe wijk dichtbij het centrum van de historische stad Hoorn. De woningen zijn voorzien van een lucht- warmtepomp in combinatie met alle verdiepingen vloerverwarming en inclusief pv- panelen. Elke woning is uitgevoerd met een vrijstaande houten berging die achter in de tuin is geplaatst.



