bouw je eigen
droomhuis met
Bouwbedrijf Hof

[rank_math_breadcrumb]

Patricierswoning

Kiest u voor het bouwen van een patriciërswoning? Bouwbedrijf Hof assisteert u graag!

Vorstelijk wonen doet u in een patriciërshuis. Van origine een woning voor voorname, niet adelijke personen. Zo is het Museum van Loon op de Keizersgracht in Amsterdam bijvoorbeeld geheel in deze stijl gebouwd. De woningen zijn vanwege hun statuur een lust voor het oog. 

Kenmerken patriciërswoning

De patriciërswoning is een klassiek model dat zich kenmerkt door symmetrie en één verdieping bevat. De voordeur wordt veelal temidden van de woning geplaatst. Patriciërswoningen worden vaak rijkelijk gesierd door bijvoorbeeld een voordeuromlijsting, waarbij de gevel boven de voordeur wordt doorgetrokken totaan de tweede verdieping. Vaak wordt boven de voordeur op de eerste verdieping een raampartij of twee openslaande deuren geplaatst. Zelfs een balkonnetje is een mogelijkheid en versterkt het gevoel van een ambtswoning. Net als bij een notariswoning vormt de goot een duidelijke begrenzing tussen gevel en dak. Patriciërswoningen zijn er in talrijke uitvoeringen. U kunt kiezen voor een modern ontwerp middels spraakmakende details, maar ook een klassieke uitvoering bestaat uit de mogelijkheden van Bouwbedrijf Hof. 

Neem voor meer informatie over patriciërswoningen bouwen contact met ons op.

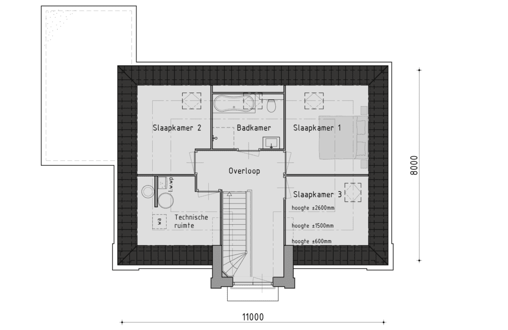
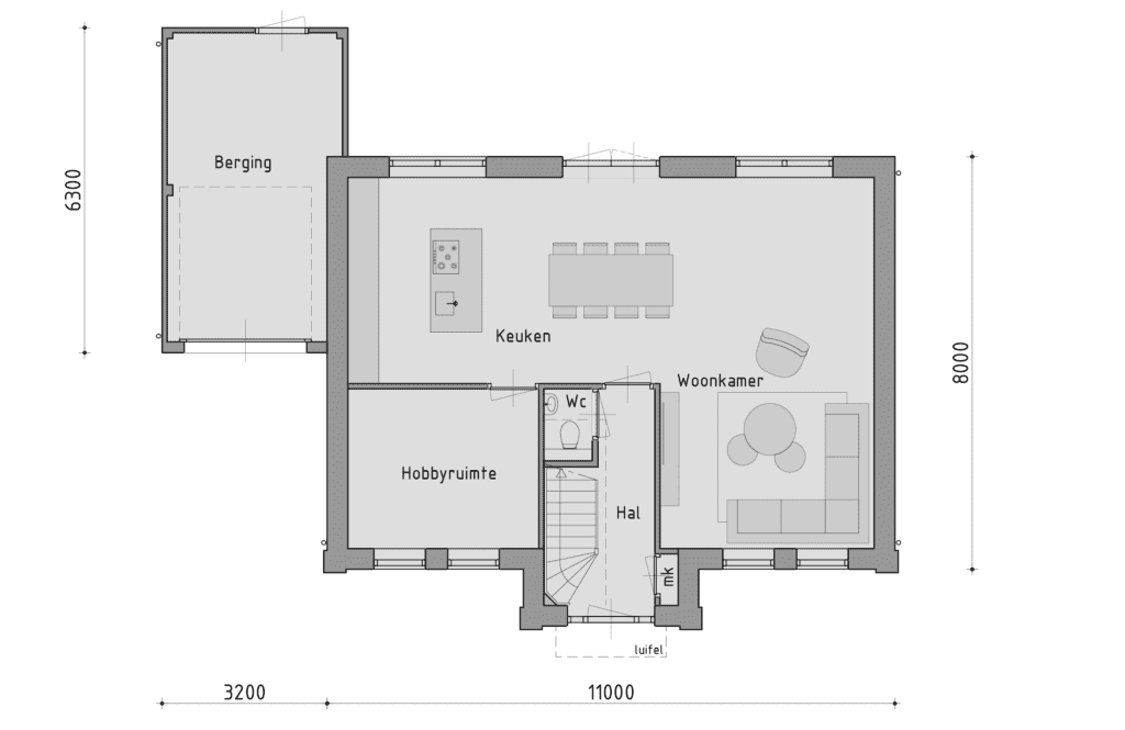
de plattegronden

beneden verdieping
boven verdieping