Herenhuis
Een herenhuis laten bouwen?
Bouwbedrijf Hof is graag tot uw dienst!
De Amsterdamse grachten worden er rijkelijk mee gesierd; herenhuizen. Deze statige en typisch Hollandse woningen zijn nog altijd immens populair en dan met name voor gezinnen. Herenhuizen bieden in de regel namelijk zeeën van ruimte dankzij de twee volledige woonruimten en een zolder.
Kenmerken Herenhuis
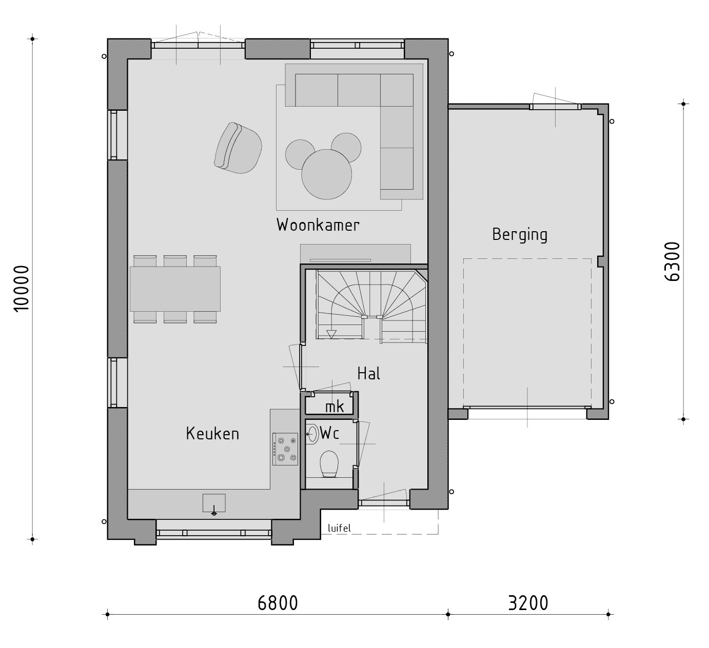
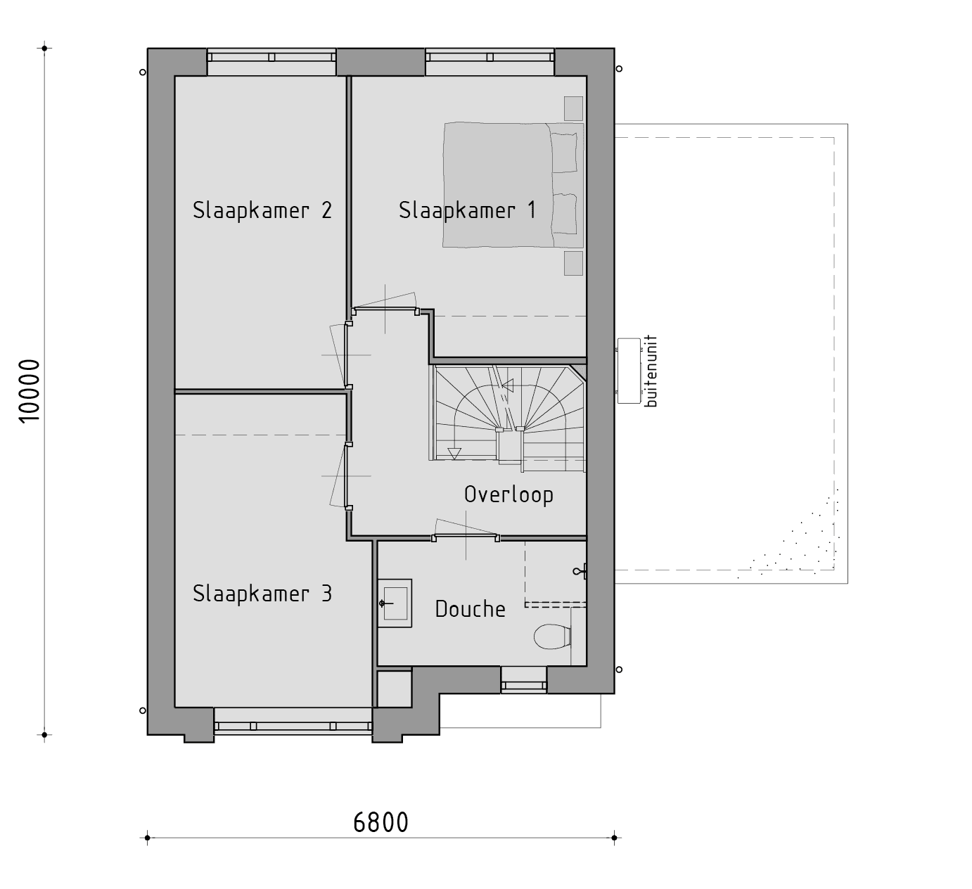
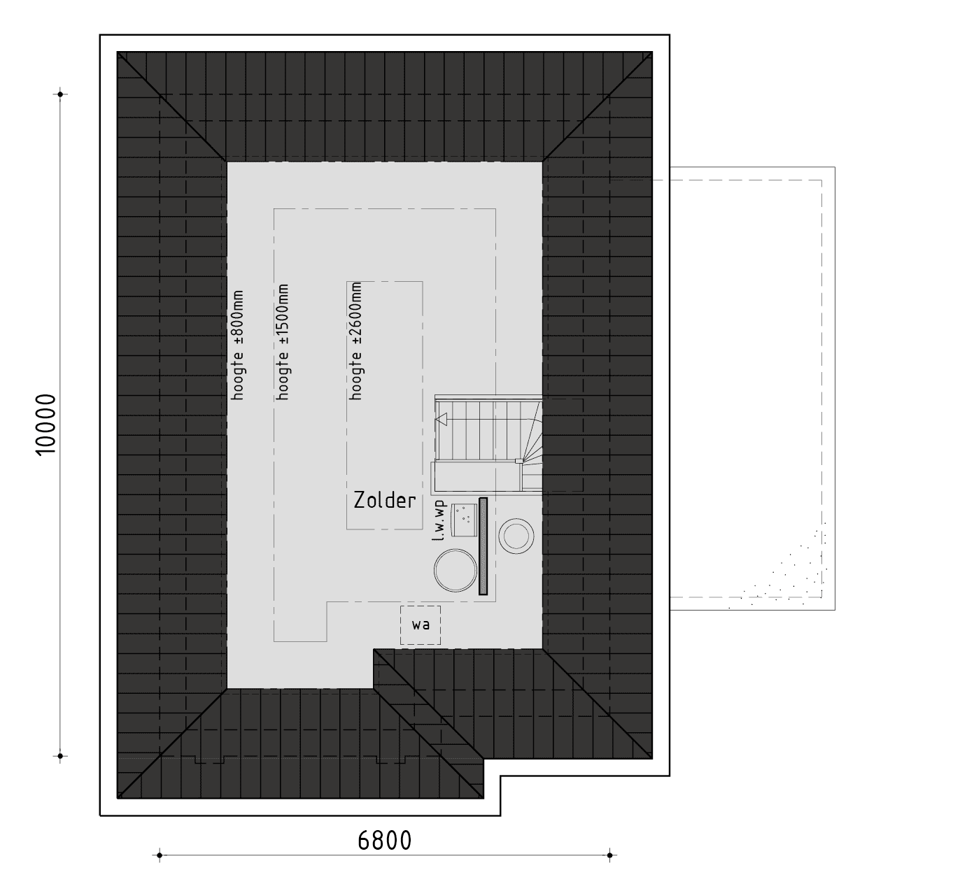
Het herenhuis is een statige, luxe woning bestaande uit minimaal twee volledige woonlagen en een zolder. De woningen zijn royaal en te herkennen aan hun hoge gootlijn en vaak hoge plafonds. Veel klanten kiezen ervoor om klassieke elementen van de nostalgische herenhuizen te verwerken in een moderne uitvoering. Er wordt dan gewerkt met hoge raampartijen, slimme figuraties en moderne tinten, zoals zwart en wit. Met de bouw van een herenhuis zit u altijd gebeiteld. De ruime woningen zijn charmant en raken nooit uit de mode.
Neem voor meer informatie over een herenhuis bouwen contact met ons op.

