bouw je eigen
droomhuis met
Bouwbedrijf Hof

[rank_math_breadcrumb]

Bungalow

Zelf een moderne bungalow bouwen? Een gelijkvloers en strak ontwerp spreekt bij veel mensen tot de verbeelding!

Veel bungalows worden gezien als levensloopbestendige woningen. En dat is niet zo gek! Vaak worden bungalows gelijkvloers opgeleverd. Dan bevinden slaapkamers en badkamers zich op de begane grond. Logisch dat de begane grond bij een bungalow vaak een ruim oppervlakte heeft. Overigens worden bungalows ook steeds vaker gebouwd met een eerste verdieping, waarbij de extra etage wordt gebruikt als studeer- of hobbykamer. Dankzij de veelal moderne bouw van bungalows wordt het gehele oppervlak vaak optimaal benut en doet de woning ruim aan. 

Kenmerken bungalow

De bouwstijl van bungalows is veelal modern. Rechte vlakken met veel grote raampartijen. In de gevel worden vaak meerdere materialen verwerkt. Bijzondere gevelstenen, soms gekeimd of gestuct, afgewisseld met houten elementen geven bungalows hun moderne en strakke uitstraling. Er wordt veelal gekozen voor een plat dak. Met een ingebouwde patio wordt licht van buiten naar binnen gebracht. Naast eenlaagse bungalows wordt er ook steeds vaker gekozen voor het bouwen van een kleine verdieping. De bungalow kenmerkt zich door toegankelijkheid, gebruikscomfort en flexibele indelingsmogelijkheden. Uiteraard wordt de bungalow gebouwd volgens de traditionele bouw waaronder hardhouten kozijnen en deuren met isolatieglas standaard zijn. Deze bungalow staat voor woongenot met een aantrekkelijke prijs.

Neem voor meer informatie over bungalows bouwen contact met ons op.

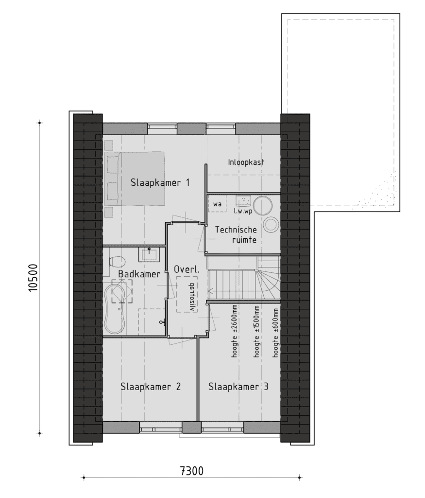
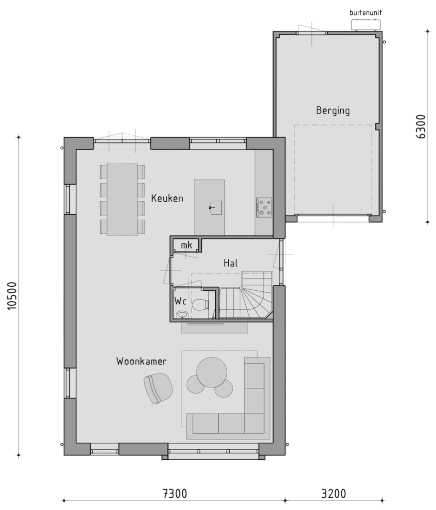
de plattegronden

beneden verdieping
boven verdieping